|
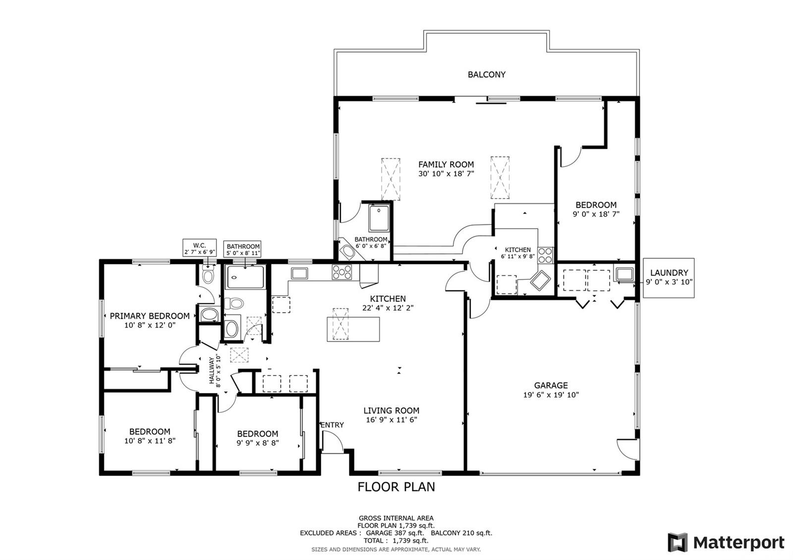
| PEN HOUSE July 30 2p-5p! This multi-level perimeter lot home in Pearl City is divided into 3 distinct separate entry living areas, and there may be room for an ADU and/or a second story on the original home. On street level, you'll find two distinct living areas: A 3 bed, 1.5 bath and a large 1 bed, 1 bath. The 3 bed area was remodeled in 2023 w/ new kitchen, bathrooms, vinyl flooring, appliances, etc. The 1 bed, 1 bath side was tastefully renovated in 2011. The finished basement was fully remodeled in 2022 & can be configured as an additional 3 bed, 1 bath living space. This home enjoys amazing breezes and sits on a large 7,883sf perimeter lot w/ sweeping views of Pearl City & the ocean beyond. The backyard is tiered into 2 levels. The upper level is finished w/ concrete surrounding the finished basement. The lower level is currently home to several mature fruit trees. Since the lot borders a canal, there are no neighbors behind. Other 2023 improvements included re-roofing and full exterior painting. Additional features include a fenced lot, complete 2 car garage, and driveway with rolling gate for privacy. Buyers to conduct due diligence to determine suitability for ADU. | What will it cost to own? | |
| MLS | Public |  | Single Family Single Family | Contemporary | Property Type Sub Type | | 1655 Hoolaulea St | 1655 Hoolaulea St |  | | Pearl City HI 96782 | Pearl City Hawaii 96782 | | | Pearl City Momilani | Momilani | | | na | Pearl City Highlands Elem |  | | na | Highlands Int | | | na | Pearl City High | | | Pearl-City-Waipahu-Complex-Area | Complex | | Public Schools | Rank | | Private School | Guide | | na | na | Builder | | MLS 202316581 | TMK 1-9-7-45-110 | Property ID | | 7 | 5 | Bedrooms | | 3 | 2 | Full Baths | | 1 | 1 | Half Baths | | 3.01 | 3 | Total baths | | 0 | | Rooms | | 4 | na | Parking | | 2,376 | 2,838 | Interior sf | | 100 | | Lanai sf | | | Other roofed sf | | 2,476 | | Total sf | | 400 | | Gar/Cpt sf | | 7,883 | 7,883 | Land sf | | $1,250,000 7/18/2023 | | Original list | | Sold | | Status | |
$1,200,000
| | Sold price | | Fee Simple | Fee Simple | Tenure | | No | | Fractional | | 1972 | 1972 | Year built | | 2023 Partial | | Remodeled | $ 0 $ 0 $ 0 $ 0 Includes: None | | AOAO fee AOAO other Maint fee AOAO total fees | City Coastline Garden Mountain Ocean Sunset | | View | Gentle Slope Terraced | | Topography | | Other | | Land Features | | Land Court | | Recorded | | R-5 Residential District | R-5 | Zoning | | Zone - D | | Flood | | Other | | Location | | Of Record | | Setbacks | | Electric | | Easements | Excellent Above Average | | Condition | Ceramic Tile Vinyl | | Flooring | Asphalt Shingle Other | | Roof | Auto Garage Door Opener Book Shelves Cable TV Ceiling Fan Dishwasher Disposal Dryer Microwave Hood Microwave Range/Oven Refrigerator Smoke Detector Washer WTRHTR | | Inclusions | | na | | Exclusions | | None | | Pool | | Key | | Security | Bedroom on 1st Floor Entry FBedroom on 1st Floor Maids/Guest Qrters Wall/Fence | | Amenities | | Stream/Canal | | Frontage | Detach Single Family Duplex | Contemporary Stories Units | Architecture | | na | | Model | | Paved Rd | | Road | Internet Overhead Electricity Public Water Sewer Fee Telephone | | Utilities | Above Ground Wood Frame | | Materials | | Two | | StoriesType | Pets Allowed (Verify) See Remarks | | Disclosures | | 0 | 0 | Public Report | 3 Car+ Driveway Garage Street | | Parking | | na | | AOAO Name | | na | | AOAO Ph | | na | | Management Co Name | | na | | Management Co Ph | | Exchange | | Buyer Financing | | Bank Of Hawaii | 1st Mortgagor | | 425,000 | 1st Mortgage | | na | 2nd Mortgagor | | na | 2nd Mortgage | | No/na | | Foreclosure/Case# | | 2023 | 2020 | Property tax year | | $ 843,800 | $ 650,700 | Land assessed | | $ 128,400 | $ 209,800 | Building assessed | | $ 0 | $ 0 | Home owner exemption | | $ 972,200 | $ 860,500 | Total assessed RPAD | | $ 284 | $ 251 | Tax per month rates | | 0 | | Total rent | | | Building Permits | 45 Days or Less Negotiable | | Possession | | None | | Special | Cash Conventional Exchange FHA Open USDA VA | | Financing | | Partial | | Furnished | | No | | New development | | Monthly | Cost to own estimate: | | $ 284 | Real Property Tax | | $ 0 | Association Fee | | $ 0 | Lease Rent | | $ 284 | Cost to own (ex Mortgage, Ins & Elec) | | 7/17/2023 | | Active | | 7/18/2023 | | Price change | | na | | Continue to show | | na | | Pending | | na | | Temp withdrawn | | na | | Back on market | | na | | Withdrawn | | 9/12/2023 | | Off market | | 9/12/2023 | | Status change | | na | | Advertise | | na | | Auction | | Hawaii Sands Realty | Listing Brokerage Firm | | 7/18/2023 | | Photos uploaded | | 8/2/2023 | | Supplement Mod |
|
© is provided by
Hawaii Home + Commercial LLC
Principal Broker
Robin Charles Glass (R), MBA, eng.
Ph: (808) 358-1774
Fax: (866) 925-1467
Email: glassr@hawaiihome.cc
MLS and Public Records Databases synchronized every 15 minutes. Includes information from the Multiple Listing Service of HiCentral MLS, Ltd. IDX information is provided exclusively for consumers` personal, non-commercial use, that it may not be used for any purpose other than to identify prospective properties consumers may be interested in purchasing, and that the information is deemed reliable but not guaranteed. © 2017 by HiCentral MLS, Ltd.
|