|
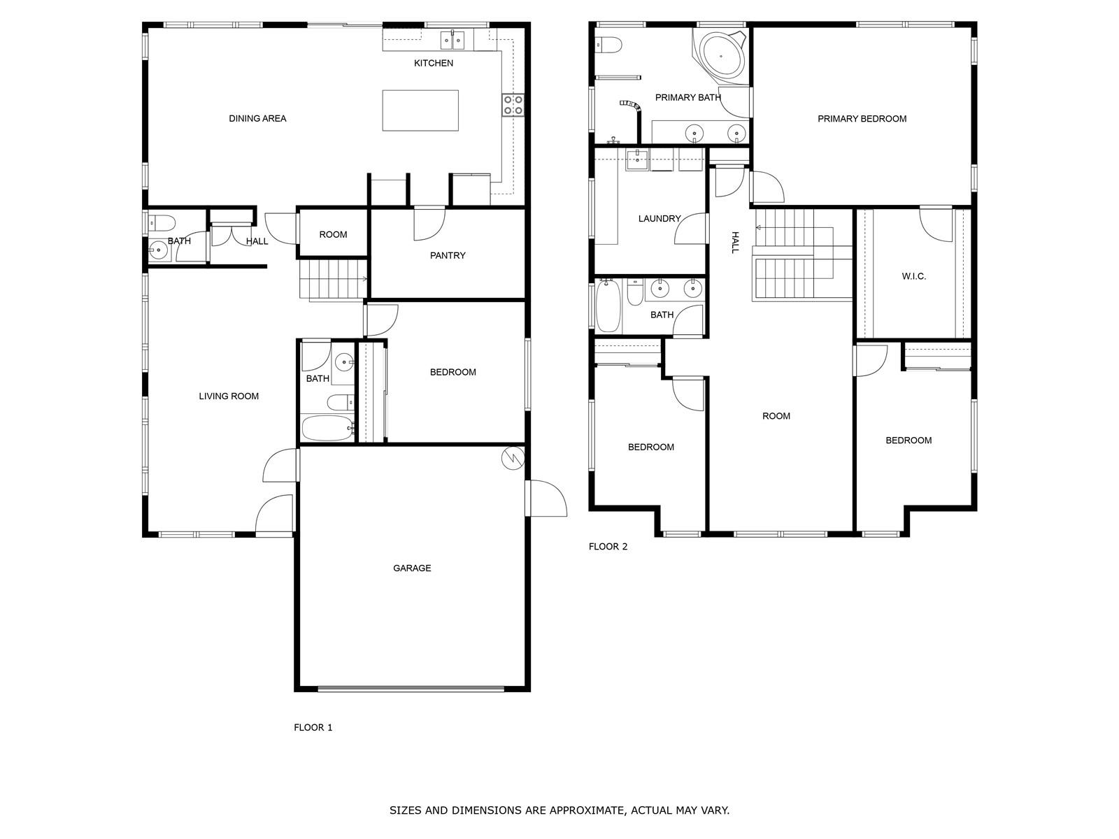
| ehold Mililani Mauka's newest American Classics (Plan 5) listing on a quiet and exclusive cul-de-sac. This newly painted, executive-style home features 4 bedrooms and 3.5 baths, with over 2,800sf of interior living space. The 1st level has a bedroom with an adjacent full bathroom, together with multiple living areas, an expansive kitchen w/island, and a huge pantry. The 2nd level with brand new carpeting is massive; featuring a spacious and comfortable family room that separates two of the three bedrooms upstairs, a dedicated laundry room with cabinets and clothes racks, and don't forget the coveted master bedroom, together with a brand new customized walk-in closet system and oversized master bathroom outfit with a shower and a tub. Additional features and benefits are; Central AC throughout, plantation shutters, beautiful landscaping, and 20 leased solar panels to reduce your electricity bill. Conveniently located near to schools, parks, shopping and a variety of dining options; call your realtor and schedule a tour of this must-see property before its too late. | What will it cost to own? | |
| MLS | Public |  | Single Family Single Family | Contemporary | Property Type Sub Type | | 95-205 Inana Pl | 95-205 Inana Pl |  | | Mililani HI 96789 | Mililani Hawaii 96789 | | | Central Mililani Mauka | Mililani | | | na | Mililani Ike Elem |  | | na | Mililani Int | | | na | Mililani High | | | Leilehua-Mililani-Waialua | Complex | | Public Schools | Rank | | Private School | Guide | | na | na | Builder | | MLS 202320513 | TMK 1-9-5-88-63 | Property ID | | 4 | 4 | Bedrooms | | 3 | 3 | Full Baths | | 1 | 1 | Half Baths | | 3.01 | 4 | Total baths | | 0 | | Rooms | | 4 | na | Parking | | 2,808 | 2,808 | Interior sf | | 0 | | Lanai sf | | | Other roofed sf | | 2,808 | | Total sf | | 420 | | Gar/Cpt sf | | 5,547 | 5,547 | Land sf | | $1,639,000 9/5/2023 | | Original list | | Sold | | Status | |
$1,700,000
| | Sold price | | Fee Simple | Fee Simple | Tenure | | No | | Fractional | | 2005 | 2005 | Year built | | 0 na | | Remodeled | $ 0 $ 0 $ 0 $ 0 Includes: Association | | AOAO fee AOAO other Maint fee AOAO total fees | | Other | | View | | Level | | Topography | | Other | | Land Features | | Regular System | | Recorded | | R-5 Residential District | R-5 | Zoning | | Zone - D | | Flood | Cul-De-Sac Inside | | Location | | Of Record | | Setbacks | None Other | | Easements | | Above Average | | Condition | Laminate W/W Carpet | | Flooring | | Asphalt Shingle | | Roof | AC Central Auto Garage Door Opener Blinds Cable TV Dishwasher Disposal Dryer Microwave Hood Microwave PHOTOL Range/Oven Refrigerator Smoke Detector Washer WTRHTR | | Inclusions | | na | | Exclusions | | None | | Pool | | Key | | Security | Bedroom on 1st Floor Entry FBedroom on 1st Floor Landscaped Patio/Deck Wall/Fence | | Amenities | | Other | | Frontage | | Detach Single Family | Contemporary Stories Units | Architecture | | na | | Model | | Paved Rd | | Road | Cable Connected Internet Public Water Sewer Fee Telephone Underground Electricity Water | | Utilities | Double Wall Wood Frame | | Materials | | Two | | StoriesType | | Disclosure Stmt | | Disclosures | | 0 | 0 | Public Report | 3 Car+ Driveway Garage | | Parking | | Mililani Town Association | | AOAO Name | | (808) 623-7300 | | AOAO Ph | | na | | Management Co Name | | na | | Management Co Ph | | Conventional | | Buyer Financing | | Wells Fargo Bank Na | 1st Mortgagor | | 720,000 | 1st Mortgage | | na | 2nd Mortgagor | | na | 2nd Mortgage | | No/na | | Foreclosure/Case# | | 2023 | 2020 | Property tax year | | $ 925,600 | $ 617,000 | Land assessed | | $ 567,000 | $ 479,200 | Building assessed | | $ 10,000,000 | $ 100,000 | Home owner exemption | | $ 1,492,600 | $ 1,096,200 | Total assessed RPAD | | $ 377 | $ 291 | Tax per month rates | | 0 | | Total rent | | | Building Permits | 45 Days or Less At Closing | | Possession | | None | | Special | Cash Conventional VA | | Financing | | na | | Furnished | | No | | New development | | Monthly | Cost to own estimate: | | $ 377 | Real Property Tax | | $ 0 | Association Fee | | $ 0 | Lease Rent | | $ 377 | Cost to own (ex Mortgage, Ins & Elec) | | 9/5/2023 | | Active | | 9/5/2023 | | Price change | | na | | Continue to show | | na | | Pending | | na | | Temp withdrawn | | na | | Back on market | | na | | Withdrawn | | 9/29/2023 | | Off market | | 10/2/2023 | | Status change | | 9/5/2023 | | Advertise | | na | | Auction | | Real Capital Advisors, LLC | Listing Brokerage Firm | | 9/5/2023 | | Photos uploaded | | na | | Supplement Mod |
|
© is provided by
Hawaii Home + Commercial LLC
Principal Broker
Robin Charles Glass (R), MBA, eng.
Ph: (808) 358-1774
Fax: (866) 925-1467
Email: glassr@hawaiihome.cc
MLS and Public Records Databases synchronized every 15 minutes. Includes information from the Multiple Listing Service of HiCentral MLS, Ltd. IDX information is provided exclusively for consumers` personal, non-commercial use, that it may not be used for any purpose other than to identify prospective properties consumers may be interested in purchasing, and that the information is deemed reliable but not guaranteed. © 2017 by HiCentral MLS, Ltd.
|