|
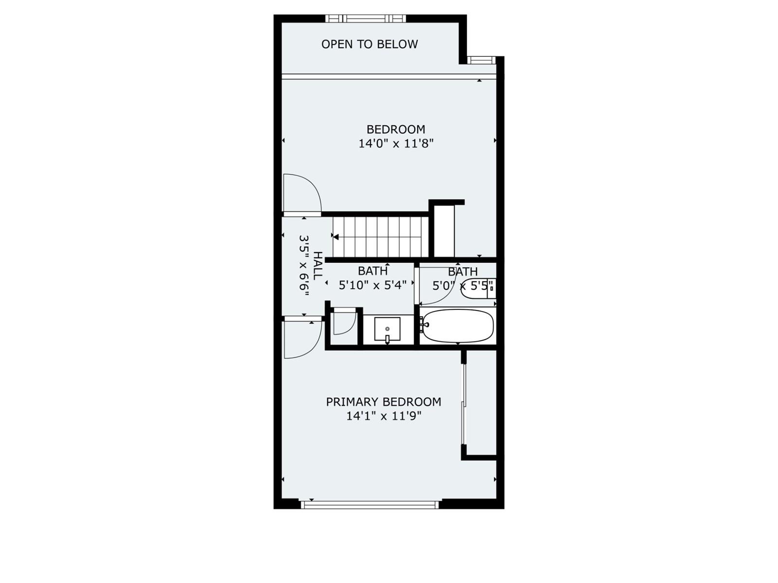
| orgeous split-level 2 bedroom, 1 bath unit located in the desired Lynwyd building! Freshly painted, washer & dryer in unit. High ceilings with a great sense of space, feels like being in a loft. Low Maintenance Fees! Building is also PET FRIENDLY! Unit includes one parking stall. Conveniently located in Nuuanu. Minutes away from many stores, restaurants, Downtown Shopping, Kakaako, Kuakini Hospital and so much more. | What will it cost to own? | |
| MLS | Public |  | | Condo/Townhouse | Condo | Property Type Sub Type | | 336 Kuakini St | 336 Kuakini St |  | | Lynwyd 124 | Lynwyd 124 | | | Honolulu HI 96817 | Honolulu Hawaii 96817 | | | Metro Nuuanu-Lower | Nuuanu | | | Lanakila | Lanakila Elem |  | | Kawananakoa | Kawananakoa Int | | | Mckinley | McKinley High | | | Kaimuki-McKinley-Roosevelt | Complex | | Public Schools | Rank | | Private School | Guide | | na | T K Lalakea Ltd T K Lalakea Ltd | Builder | | MLS 202323617 | TMK 1-1-7-15-6-6 | Property ID | | 2 | 2 | Bedrooms | | 1 | 1 | Full Baths | | 0 | 0 | Half Baths | | 1 | 1 | Total baths | | 0 | | Rooms | | 1 | 1 | Parking | | 742 | 742 | Interior sf | | 0 | | Lanai sf | | 742 | | Total sf | | $448,000 10/19/2023 | | Original list | | Sold | | Status | |
$455,000
| | Sold price | | Fee Simple | Fee Simple | Tenure | | No | | Fractional | | 1973 | 1973 1973 | Year built | | na | | Conversion | | 0 na | | Remodeled | | 59 % | Biennial Reg, § 6. | Owner Occupancy | $ 0 $ 0 $ 451 $ 450 Includes: Other Common Expenses Sewer Water | | AOAO fee AOAO other Maint fee AOAO total fees | | 2 | 2 | Floor | | None | | View | | Regular System | | Recorded | | A-2 Medium Density Apartme | A-2 | Zoning | | Zone - X | | Flood | | na | | Restrictions | Excellent Above Average | | Condition | Corner/End Split Level | | Features | Ceramic Tile Laminate | | Flooring | AC Window Unit Disposal Drapes Dryer Range/Oven Refrigerator Washer | | Inclusions | | na | | Exclusions | | Key | None | Security | | Resident Manager | | Amenities | | na | | Frontage | | Low-Rise 6 or Less Stories | Condo 3 Stories 44 Units | Architecture | | na | | Model | | na | Skyscraper | Concrete Masonry/Stucco | | Materials | | Two | | StoriesType | | Disclosure Stmt | | Disclosures | | 7 | | Parking stall ID  | | | | | | | | 0 | 464 | Public Report | Assigned Open - 1 Street | | Parking | | 2 | Guest parking | | 0 | Passenger 1 Freight 0 | Elevators | | na | | AOAO Name | | na | | AOAO Ph | | Hawaiiana | Hawaiiana Mgmt Co Ltd | Management Co Name | | 808-593-9100 | | Management Co Ph | | VA | | Buyer Financing | | Colorado Federal Savings Bank | 1st Mortgagor | | 233,200 | 1st Mortgage | | Colorado Federal Savings Bank | 2nd Mortgagor | | 43,500 | 2nd Mortgage | | No/na | | Foreclosure/Case# | | 2023 | 2020 | Property tax year | | $ 113,000 | $ 122,200 | Land assessed | | $ 347,200 | $ 217,200 | Building assessed | | $ 100,000 | $ 0 | Home owner exemption | | $ 460,200 | $ 339,400 | Total assessed RPAD | | $ 105 | $ 99 | Tax per month rates | | 0 | | Total rent | | | Building Permits | 45 Days or Less At Closing | | Possession | | None | | Special | Cash Conventional VA | | Financing | | na | | Furnished | | No | | New development | | Monthly | Cost to own estimate: | | $ 105 | Real Property Tax | | $ 450 | Association Fee | | $ 0 | Lease Rent | | $ 555 | Cost to own (ex Mortgage, Ins & Elec) | | 10/19/2023 | | Active | | 10/19/2023 | | Price change | | na | | Continue to show | | na | | Pending | | na | | Temp withdrawn | | na | | Back on market | | na | | Withdrawn | | 12/5/2023 | | Off market | | 12/5/2023 | | Status change | | na | | Advertise | | na | | Auction | | Compass | Listing Brokerage Firm | | 10/20/2023 | | Photos uploaded | | 10/20/2023 | | Supplement Mod |
|
© is provided by
Hawaii Home + Commercial LLC
Principal Broker
Robin Charles Glass (R), MBA, eng.
Ph: (808) 358-1774
Fax: (866) 925-1467
Email: glassr@hawaiihome.cc
MLS and Public Records Databases synchronized every 15 minutes. Includes information from the Multiple Listing Service of HiCentral MLS, Ltd. IDX information is provided exclusively for consumers` personal, non-commercial use, that it may not be used for any purpose other than to identify prospective properties consumers may be interested in purchasing, and that the information is deemed reliable but not guaranteed. © 2017 by HiCentral MLS, Ltd.
|